Modern Gallery
Zgłoś naruszenie...
Wybierz jedną z poniższych opcji.
Ten komentarz dotyczy mnie lub znajomego:
atakuje mnie,
atakuje znajomego.
Komentarz dotyczy czegoś innego:
spam lub oszustwo,
propagowanie nienawiści,
przemoc lub krzywdzące zachowanie,
treść o charakterze erotycznym.
Napisz
PANEL

werwik

wpisy na blogu

Zmiany

Blog:  werwik
Data dodania: 2015-05-01
wyślij wiadomość

blog budowlany - mojabudowa.pl

blog budowlany - mojabudowa.pl

blog budowlany - mojabudowa.pl

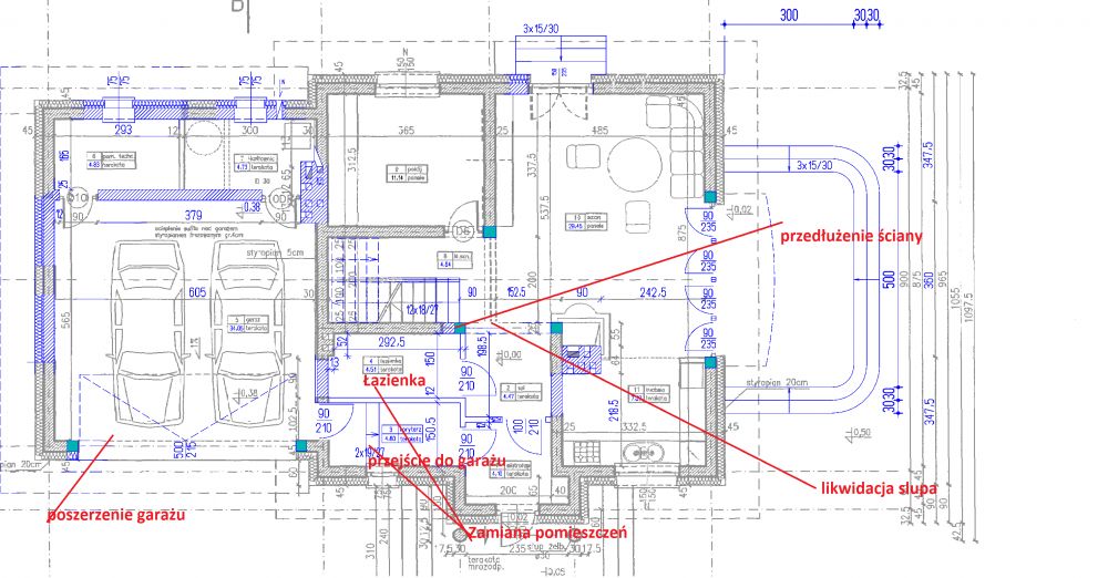
przesyłam zdjęcia po zmianach projektu, kilka opisalismyblog budowlany - mojabudowa.plblog budowlany - mojabudowa.plblog budowlany - mojabudowa.pl

Witam wszystkich

Blog:  werwik
Data dodania: 2015-05-01
wyślij wiadomość

nie minęło i 15 miesięcy od zakupu działki i w końcu mam pozwolenie na budowę. Sprawy urzędowe do droga przez mękę. Po zebraniu wszystkich zaświadczeń o przyłączach itd. złożyliśmy o warunki zabudowy - czas oczekiwania 7miesięcy + prawie miesiąc na uprawomocnienie( aż wszyscy sąsiedzi odbiorą zawiadomienia). W między czasie wszedł jakiś nowy przepis o wyłączeniu gruntów z produkcji rolnej ( dawniej podobno robiło się to przy odbiorze budynku teraz już trzeba to zrobić do pozwolenia na budowę), ale potrzebny jest oczywiście plan wyłączenia, który musi wykonać architekt- czas oczekiwania w urzędzie 30 dni. Otrzymuje się umożenie postępowania, na gotowym szablonie jak się okazuje, w moim przypadku odebrałam dokument z innym nazwiskiem, imieniem i ulicą (poprostu nie zostały zmienione dane z wystawionego poprzedniej osobie). 

Po wielu obejrzanych projektach, wybraliśmy Opałka, potem była zmiana na Śnieżkę aż w końcu znaleźliśmy Puchatka. Po kilku zmianach zbliżyliśmy się do tego czego oczekiwaliśmy. Architekt uporał się w miarę szybko i mogliśmy złożyć o pozwolenie na budowę i tu niespodzianka wreszcie nie czekaliśmy ustawowych 65 dni , po 30 dniach mieliśmy w rękach pozwolenie + oczywiście czas na uprawomocnienie.

Wodę doprowadziliśmy już w ubiegłym roku, okazało się z kolei,że na podłączenie prądu możemy poczekać do końca września 2016r., gdyż chcemy kablem a nie napowietrznie. :( trza będzie pożyczać od sąsiadów. 


blog budowlany - mojabudowa.pl

Działka po zakupie. 

werwik Wyślij wiadomość do autora OBSERWUJ BLOGA
statystyki bloga
Odwiedzin bloga: 1571
Komentarzy: 11
Obserwują: 6
On-line: 9
Wpisów: 17 Galeria zdjęć: 43
Projekt PUCHATEK 2G
BUDYNEK- dom wolno stojący , parterowy z poddaszem bez piwnicy
TECHNOLOGIA - murowana
MIEJSCE BUDOWY - Sosnowiec
ETAP BUDOWY - Brak
ARCHIWUM WPISÓW
2016 lipiec
2015 sierpień
2015 maj

Statystyki mojabudowa.pl
Liczba blogów: 68111
Liczba wpisów: 223125
Liczba komentarzy: 902960
Liczba zdjęć: 682424
Liczba osób online: 59
usuń reklamy
Top 100 blogów

sprawdź listę 100 najczęściej odwiedzanych blogów.

sprawdź teraz